Fusing clean modern lines with alpine tradition.

EACH RESIDENCE IS CAREFULLY CONSIDERED TO MAXIMISE OUTLOOK, NATURAL LIGHT AND FUNCTIONALITY

Responding to both the landscape and Queenstown’s climate and stunning surroundings. Interiors are restrained, and modern, finished in a neutral palette that enhances light and space. Quality materials, durable finishes, and efficient layouts ensure long-term appeal for both residents and guests. Kitchenettes feature stone-style benchtops and contemporary appliances, delivering spaces that are practical, understated, and well suited to Queenstown’s premium short- and long-stay accommodation market.

Le Mont presents flexible dual-key residences.

Dual-key Typologies

Key:
1. Front entry
2. Bathroom
3. Kitchenette
4. Storage
5. Master bed
6. Lounge/Dining

Layouts offer ample space for comfortable long or short-term stays and offer great rental flexibility. 

View Masterplan for more details

One-Bedroom Typology

Key:
1. Front entry
2. Bathroom
3. Kitchenette
4. Storage
5. Master bed
6. Lounge/Dining

Layout offers ample space for comfortable long or short-term stays.

View Masterplan for more details

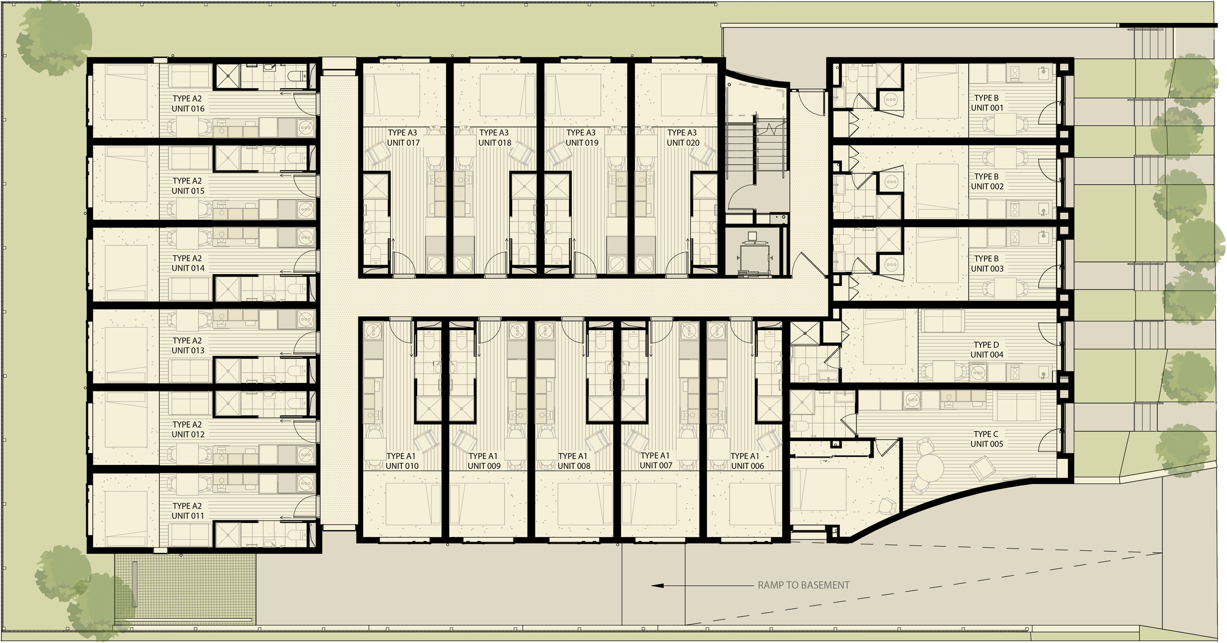
Masterplan

Le Mont Apartments offers dual-key apartments with the option to secure one of 10 individually available car parks.

CLICK BELOW PLANS TO ENLARGE

Ground Floor

Basement Carpark

Level 1

Level 2